Projects

OUR LATEST PROJECTS

Recent projects that reflect our commitment to design quality and engineering precision.

Abdoun Royal Villas

Discover our latest work, featuring a modern residential project in Abdoun that reflects our design vision and engineering excellence.

A refined modern design that responds to the context of Abdoun while maintaining a timeless architectural identity.
Seamless coordination between architectural vision and structural, mechanical, and electrical engineering systems.
Carefully selected materials and precise detailing to ensure durability, performance, and a premium finish.
Well-studied layouts that maximize comfort, natural light, and efficient use of space.

THE ROYAL VILLAS

Abdoun โ€“ Amman

Located in one of Ammanโ€™s most prestigious neighborhoods, Royal Villas is a refined residential development that redefines modern luxury living through exceptional design, premium specifications, and superior execution quality.


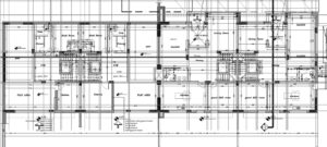
Villa Areas

  • Two villas with a built-up area of 600 sqm
  • Two villas with a built-up area of 700 sqm

Key Specifications & Features

  • Central VRF Air Conditioning System (Samsung) for optimal comfort and energy efficiency
  • Underfloor Heating System powered by Heat Pump technology for year-round luxury living
  • Indoor Heated Swimming Pool (4 ร— 8 meters) offering private resort-style comfort
  • Private Elevator serving all floors
  • Dedicated Home Cinema Room plus a Royal Master Suite
  • Private Gym (Fitness Area)
  • Exclusive Private Backyard for each villa
  • Four Private Parking Spaces per Villa
  • High-end Finishes with carefully selected premium materials

Project Overview

The project consists of four attached luxury villas, thoughtfully designed to meet the needs of families seeking privacy, comfort, and sophistication without compromising on elegance or functionality. Every detail has been carefully consideredโ€”from intelligent space planning and natural lighting to premium materials and flawless craftsmanshipโ€”making Royal Villas an ideal choice for upscale living or long-term investment in Abdoun.



Um Al Ammad Mansion

This private mansion in Um Al Ammad reflects a refined approach to luxury residential design, combining contemporary architecture with carefully engineered solutions. The project was developed with a strong focus on spatial harmony, material quality, and architectural presence, resulting in a residence that balances elegance, functionality, and long-term performance. Every detail was thoughtfully considered to create a timeless home that responds to both its context and the lifestyle of its residents.

Luxury Contemporary Architecture
Tailored Spatial Experience
Premium Materials & Craftsmanship
Integrated Engineering Excellence


Abdoun Villa

This classic villa project in Abdoun reflects timeless architectural principles combined with carefully planned residential functionality. The design emphasizes balanced proportions, symmetry, and refined detailing, creating a dignified architectural presence. Thoughtful spatial planning and well-integrated engineering systems ensure comfort, durability, and long-term value, resulting in a residence that maintains its elegance over time.

Timeless Classical Architecture
Elegant Spatial Planning
Refined Materials & Detailing
Integrated Engineering Systems


Abu Nassar Engineering Office

This beautifully designed office reflects a refined balance between functionality and architectural elegance. Thoughtful spatial planning, high-quality materials, and carefully considered details create a professional environment that is both welcoming and inspiring. The design expresses our commitment to quality, aesthetics, and well-crafted spaces that support productivity and creativity.

Elegant Interior Design
Functional Spatial Planning
High-Quality Materials & Finishes
Comfort-Oriented Work Environment


Abu Nassar Commercial Building


OUR PARTNERS